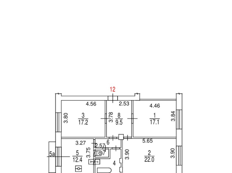
Изменение границ ванной комнаты и уборной

перепланировок за 2023 год

вероятность согласования

опыта на рынке, с 2016 года

Изменение границ ванной комнаты и уборной

Ленинский проспект, дом 28.
2,5 месяца
450 000 руб.

Бесплатный аудит вашей перепланировки

Заполните форму и мы проведем анализ вашей ситуации, дав экспертное заключение о возможности перепланировки помещения.

Тип помещения
Площадь помещения
На каком этапе
Что хотите сделать или уже сделали
Документы (если есть)
  1. БТИ, экспликация (поэтажный план)
  2. Эскиз планируемых работ (можно от руки)
Адрес *