Нежилое здание

Согласование перепланировки нежилого помещения в Москве

Оплата после согласование перепланировки - прописываем в договоре! Учитываем все требования 2024 г.

перепланировок за 2023 год

вероятность согласования

опыта на рынке, с 2016 года

Бесплатная консультация

Оставьте заявку и наш специалист свяжется с вами в ближайшее время

Нажимая «Получить консультацию», вы соглашаетесь на обработку персональных данных

Перепланировка нежилого помещения проводится в целях изменения его функционального назначения или более эффективного использования доступного пространства. Если вы хотите сделать новый вход, поставить еще одно окно или убрать перегородку в нежилом помещении, то лучшим решением вопроса станет обращение в компанию ООО “ТехСтройЭксперт”. Мы предлагаем профессиональные услуги юристов, проектировщиков и кадастровых инженеров, которые помогут быстро согласовать изменения в государственных органах в соответствии с федеральным законодательством и нормативными актами города Москвы или Московской области. 

Наши специалисты помогут вам оформить все необходимые документы, включая проект перепланировки нежилого помещения, техническое заключение о безопасности несущих конструкций здания и технический план нежилого помещения. 

Мы гарантируем вам:

  • бесплатную консультацию, аудит вашей ситуации, выезд и обмер нежилого помещения;
  • работа по официальному договору, в котором оплата предусмотрена лишь после успешного завершения процесса согласования;
  • подготовка и оформление всех документов “под ключ” в одном месте;

Обращайтесь к нам, и ваша перепланировка нежилого помещения будет выполнена быстро, качественно и безопасно!

Цены

Услуга Сроки Стоимость
Перепланировка нежилого помещения коммерческого назначения «под ключ» от 30 дней от 130 000₽
Перевод из нежилого помещения в жилое от 35 дней от 150 000₽
Получение разрешения на перепланировку нежилого помещения без затрагивания несущих конструкций от 15 дней от 50 000₽
Получение разрешения с затрагиванием несущих конструкций от 15 дней от 60 000₽
Получить услугу

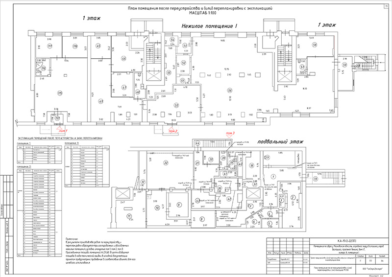
Пример перепланировки нежилого помещения

Московская область, г. Балашиха, пр. Ленина, д.47
75 дней
594 000 руб
Получить услугу

Стоимость перепланировки нежилого помещения

Разработка проекта перепланировки
Нежилые
Все документы пришлем вам на электронную почту с нашей электронной подписью. Если нужны бумажные копии, отдадим в офисе или пришлем с курьером.
Услуга СРОКИ СТОИМОСТЬ
Проект перепланировки от 3 дней от 40 000₽
Техническое заключение от 5 дней от 40 000₽
Подробнее про услугу:
  • Выезд инженера для проведения обследования.
  • Отрисовка результатов обследования, масштабирование, наложение на технический паспорт БТИ, подробный анализ.
  • Разработка проектной документации
  • Выезд инженера для проведения авторского надзора по окончанию строительно-монтажных работ.
  • Подготовка актов на скрытые работы и акта о завершенном переустройстве.
Получить услугу
Проект перепланировки и согласование
Нежилые
Все документы пришлем вам на электронную почту с нашей электронной подписью. Если нужны бумажные копии, отдадим в офисе или пришлем с курьером.
Услуга СРОКИ СТОИМОСТЬ
Проект перепланировки от 3 дней от 40 000₽
Техническое заключение от 5 дней от 40 000₽
Согласование в МЖИ от 20 дней от 50 000₽
Заключение СЭС от 30 дней от 60 000₽
Подробнее про услугу:
  • Разработаем проект перепланировки и техническое заключение
  • Закажем техпаспорт БТИ и остальные документы для согласования.
  • Согласуем проектную документацию и получим положительное заключение в Роспотребнадзоре
  • Отправим заявления и документы в Мосжилинспекцию.
  • Получим разрешение Мосжилинспекции
  • Подготовка актов на скрытые работы и акта о завершенном переустройстве.
  • Получения акта приемочной комиссии в Мосжилинспекции
Получить услугу
Проект перепланировки, согласование и технадзор
Нежилые
Все документы пришлем вам на электронную почту с нашей электронной подписью. Если нужны бумажные копии, отдадим в офисе или пришлем с курьером.
Услуга СРОКИ СТОИМОСТЬ
Проект перепланировки от 3 дней от 40 000₽
Техническое заключение от 3 дней от 40 000₽
Согласование в МЖИ от 20 дней от 50 000₽
Технический надзор от 30 дней от 20 000₽
Заключение СЭС от 30 дней от 60 000₽
Подробнее про услугу:
  • Разработаем проект перепланировки и техническое заключение
  • Закажем техпаспорт БТИ и остальные документы для согласования.
  • Согласуем проектную документацию и получим положительное заключение в Роспотребнадзоре
  • Отправим заявления и документы в Мосжилинспекцию.
  • Получим разрешение Мосжилинспекции
  • Подготовка актов на скрытые работы и акта о завершенном переустройстве.
  • Выезд инженера для проведения авторского надзора по окончанию строительно-монтажных работ.
  • Получения акта приемочной комиссии в Мосжилинспекции
Получить услугу
Дополнительные услуги
Нежилые
Все документы пришлем вам на электронную почту с нашей электронной подписью. Если нужны бумажные копии, отдадим в офисе или пришлем с курьером.
Услуга СРОКИ СТОИМОСТЬ
Общее собрание собственников от 30 дней от 100 000₽
Разработка инженерных проектов от 5 дней от 10 000₽
Конструктивные расчеты от 7 дней от 15 000₽
Алмазная резка и усиление проемов от 10 дней от 60 000₽
В каких случаях требуется?
  • Собрания собственников — понадобится в случае работ с фасадом здания, или в случае затрагивания общего имущества собственников многоквартирного дома.
  • Конструктивные расчеты — если вы планируете производить работы, связанные с затрагиванием несущих конструкций или перекрытий, устройством антресольного этажа — мы произведем для вас расчеты нагрузок
  • Алмазная резка и усиление проемов — выполняется для усиления проемов в несущих стенах и перекрытиях.
Получить услугу
Разработка проекта перепланировки
Нежилые
Все документы пришлем вам на электронную почту с нашей электронной подписью. Если нужны бумажные копии, отдадим в офисе или пришлем с курьером.
Услуга СРОКИ СТОИМОСТЬ
Техническое заключение от 5 дней от 80 000₽
Подробнее про услугу:
  • Выезд инженера для проведения обследования.
  • Отрисовка результатов обследования, масштабирование, наложение на технический паспорт БТИ, подробный анализ.
  • Разработка проектной документации
  • Выезд инженера для проведения авторского надзора по окончанию строительно-монтажных работ.
  • Подготовка актов на скрытые работы и акта о завершенном переустройстве.
Получить услугу
Проект перепланировки и согласование
Нежилые
Все документы пришлем вам на электронную почту с нашей электронной подписью. Если нужны бумажные копии, отдадим в офисе или пришлем с курьером.
Услуга СРОКИ СТОИМОСТЬ
Техническое заключение от 5 дней от 80 000₽
Согласование в МЖИ от 20 дней от 50 000₽
Заключение СЭС от 30 дней от 100 000₽
Подробнее про услугу:
  • Разработаем проект перепланировки и техническое заключение
  • Закажем техпаспорт БТИ и остальные документы для согласования.
  • Согласуем проектную документацию и получим положительное заключение в Роспотребнадзоре
  • Отправим заявления и документы в Мосжилинспекцию.
  • Получим разрешение Мосжилинспекции
  • Подготовка актов на скрытые работы и акта о завершенном переустройстве.
  • Получения акта приемочной комиссии в Мосжилинспекции
Получить услугу
Проект перепланировки, согласование и технадзор
Нежилые
Все документы пришлем вам на электронную почту с нашей электронной подписью. Если нужны бумажные копии, отдадим в офисе или пришлем с курьером.
Услуга СРОКИ СТОИМОСТЬ
Техническое заключение от 5 дней от 80 000₽
Согласование в МЖИ от 20 дней от 50 000₽
Технический надзор от 30 дней от 20 000₽
Заключение СЭС от 30 дней от 100 000₽
Подробнее про услугу:
  • Разработаем проект перепланировки и техническое заключение
  • Закажем техпаспорт БТИ и остальные документы для согласования.
  • Согласуем проектную документацию и получим положительное заключение в Роспотребнадзоре
  • Отправим заявления и документы в Мосжилинспекцию.
  • Получим разрешение Мосжилинспекции
  • Подготовка актов на скрытые работы и акта о завершенном переустройстве.
  • Выезд инженера для проведения авторского надзора по окончанию строительно-монтажных работ.
  • Получения акта приемочной комиссии в Мосжилинспекции
Получить услугу
Дополнительные услуги
Нежилые
Все документы пришлем вам на электронную почту с нашей электронной подписью. Если нужны бумажные копии, отдадим в офисе или пришлем с курьером.
Услуга СРОКИ СТОИМОСТЬ
Общее собрание собственников от 30 дней от 10 000₽
Разработка инженерных проектов от 5 дней от 10 000₽
Конструктивные расчеты от 7 дней от 15 000₽
Алмазная резка и усиление проемов от 10 дней от 60 000₽
В каких случаях требуется?
  • Собрания собственников — понадобится в случае работ с фасадом здания, или в случае затрагивания общего имущества собственников многоквартирного дома.
  • Конструктивные расчеты — если вы планируете производить работы, связанные с затрагиванием несущих конструкций или перекрытий, устройством антресольного этажа — мы произведем для вас расчеты нагрузок
  • Алмазная резка и усиление проемов — выполняется для усиления проемов в несущих стенах и перекрытиях.
Получить услугу
Бесплатная консультация

Анализ вашей перепланировки от ведущих специалистов в области градостроительного права

Специалисты нашей компании проведут профессиональную консультацию в течении 30 минут и ответят на все вопросы

Перепланировка нежилых помещений

Компания ООО «ТехСтройЭксперт» осуществляет согласование переустройств с 2016 г. За это время специалисты в штате значительно повысили квалификацию, увеличили имеющийся опыт. На нашем счету согласование перепланировок крупных международных компаний, объектов частной собственности, торговых центров и магазинов. Цели у всех были разные: повышение комфорта или увеличение ликвидности недвижимости. Но каждый из клиентов остался доволен сотрудничеством.

Мы предлагаем бесплатные консультации, услугу разработки документации, а также оказываем помощь в разрешении споров при обращении в специальные инстанции по доступным ценам.

Основные варианты перепланировки нежилых помещений

Чтобы выбрать алгоритм действий, нужно понять, к какой разновидности относится перепланировка:

  • недвижимость в доме, принадлежащем нежилому фонду – следует обращаться в Префектуру;
  • помещение в жилом доме – согласование значительных изменений производится по разрешению Мосжилинспекции;
  • минимальная перепланировка нежилого помещения в доме жилого фонда согласовывается в Мосжилинспекции.

Нарушение процесса узаконивания, а также эксплуатация недвижимости без согласования грозит штрафами и санкциями. Чтобы избежать подобных последствий, нельзя пропускать ни один этап процедуры.

Вариант I

Требования стандартные: разработка полноценного проекта, величина которого зависит от количества вносимых изменений. Важно получить подтверждение, что перепланировка нежилого помещения соответствует нормам безопасности. Также необходимо отдать проект на согласование, что может привести к увеличению периода работ.

Вариант II

Когда планируются существенные изменения в жилом помещении, изучается Постановление Правительства №73-ПП. Основные возможности при таком варианте:

  • демонтаж старого и установка нового напольного покрытия, что определяет нагрузку на черновую основу;
  • возведение дополнительных стен – тоже способствует изменению уровня давления на перекрытие; монтаж санузла;
  • перестройка капитальных несущих стен – обустройство дополнительных проемов с усилением и др.

Главная задача – получить подтверждение целесообразности работ, для чего проводится обследование нежилого помещения. Потребуется разработка проекта полностью, важной частью считается инженерная.

Вариант III

Правила процедуры можно изучить в Постановлении Правительства Москвы №73-ПП. Такая перепланировка нежилого помещения предполагает выполнение действий:

  • устранение имеющихся и строительство новых перегородок;
  • перенос проемов в перегородках, не являющихся несущими;
  • демонтаж инженерных коммуникаций.

Чаще всего достаточно архитектурной части. Чтобы подробнее узнать, какие документы потребуются в процессе, можно получить бесплатную консультацию у наших специалистов.

Согласование перепланировки нежилого помещения в домах жилого и нежилого фонда

После уточнения всех деталей подписывается договор, нотариальная доверенность. Определяется порядок процедуры в зависимости от типа перепланировки нежилого помещения.

Подготовка при выборе варианта I:

  • Сбор документации.
  • Техническое заключение.
  • Проектная работа.
  • Обращение в Роспотребнадзор и другие службы (пожарную, ДЕЗ, архитектурно-планировочное управление).
  • Подтверждение целесообразности перепланировки в Префектуре.

Согласование при выборе варианта II:

  • Работа с документацией.
  • Техническое заключение.
  • Подготовка проекта.
  • Подтверждение перепланировки при обращении в Роспотребнадзор, пожарную службу, ДЕЗ, архитектурно-планировочное управление.
  • Передача документов в Мосжилинспекцию.

Если предпочтение отдается планировке по варианту III, инструкция следующая:

  • Разработка документации.
  • Подготовка архитектурной части проекта.
  • Обращение в инстанции: УГПС, ДЕЗ, СЭС.
  • Передача документации в Мосжилинспекцию.

Мы предоставляем свои услуги владельцам разных объектов: кафе, магазинов, промышленных производств, складских помещений, офисных зданий, ресторанов и баров.

Как мы работаем

Согласование перепланировки нежилого помещения требует времени и сил. Иногда приходится обращаться в инстанции десятки раз, т. к. сложно подготовить проект и техническую документацию, не нарушая правил. Мы решаем эту проблему.

Предлагаем ускоренное завершение процедуры подготовки документов, ее передачи и получения заключения в инстанциях за короткий срок по доступной цене. Вопросы можно задать во время консультации по телефону, есть также возможность вызвать специалиста на объект для осмотра на месте.

Бесплатный аудит вашей перепланировки

Заполните форму и мы проведем анализ вашей ситуации, дав экспертное заключение о возможности перепланировки помещения.

Тип помещения
Площадь помещения
На каком этапе
Что хотите сделать или уже сделали
Документы (если есть)
  1. БТИ, экспликация (поэтажный план)
  2. Эскиз планируемых работ (можно от руки)
Адрес *

Часто задаваемые вопросы

Сколько времени нужно, чтобы согласовать перепланировку?

Теоретически все быстро: Мосжилинспекция рассматривает документы 20 рабочих дней, после чего собственнику дается 18 месяцев на проведение работ. На практике все сложнее. Процедура может тянуться месяцами: если в подготовленном проекте или в других документах есть ошибки или неточности, то заявление будут регулярно возвращать для исправления. Чтобы не тратить время, обращайтесь в нашу компанию. Мы ведем авторский надзор на всех этапах, чтобы исключить любые ошибки в процедуре согласования.

Как контролирующие органы узнают о незаконной перепланировке?

Обнаружить незаконную перепланировку в местах общего пользования — не проблема. Но и когда речь идет о внутренней части помещения, у контролирующих органов есть масса инструментов. Помимо согласования перепланировок, в компетенцию Мосжилинспекции входит принятие жалоб и контроль за законностью производимых работ. То есть заявления от оценщика, вызванного на дом электрика или любого другого лица будет достаточно, чтобы провести проверку, выписать штраф и выдать предписание о необходимости согласовать изменения или вернуть помещение в исходный вид.

Какими документами можно подтвердить законность перепланировки?

Узаконенная перепланировка помещения подтверждается распоряжением Мосжилинспекции, которое дает право на выполнение соответствующих действий, актом о завершенном переустройстве и (или) перепланировке помещения, обновленным планом БТИ. Помимо этого, собственнику стоит заказать свежую выписку из ЕГРН. Во-первых, чтобы проверить, что Росреестр внес изменения правильно. Во-вторых, она будет одним из документов, подтверждающих законность перепланировки.

Когда не нужно узаконивать перепланировку?

Перепланировку и переустройство всегда нужно согласовывать. Но все-таки не каждый ремонт предполагает узаконивание. Без согласования можно:

  • заменить инженерное оборудование (трубы, ванну) на аналогичное по габаритам;
  • сделать косметический ремонт (покрасить стены, переклеить обои, нанести штукатурку);
  • установить новые окна и двери, если стены и проемы не будут изменены;
  • заменить радиаторы центрального отопления.

Но не все так просто. К примеру, Мосжилинспекция в общем случае разрешает замену отопительных приборов без согласования, но если для работ нужны дополнительные подводки, то разрешение будет необходимо.

Каков штраф за незаконную перепланировку?

Физлица заплатят от 2 до 2,5 тыс. рублей, юрлица и ИП — от 40 до 50 тыс. рублей. Но штраф — не единственная проблема. Мосжилинспекция выдаст собственнику предписание о необходимости вернуть помещение в первоначальный вид, если перепланировка выполнена с нарушением установленных правил и норм. Поэтому стоит сразу обращаться к профессионалам, чтобы избежать проблем с контролирующими органами, а также дополнительных расходов.

Остались вопросы? Задайте их экcперту

Напишите нам в Telegram/What’s app. Наш специалист ответит в течение нескольких минут.

Отзывы

Лариса Геннадьевна Ф.

Хочу выразить благодарность архитектурному бюро «Прямое Право» за отличную работу. Все четко, оперативно, эффективно. Обратилась с вопросом по узакониванию уже выполненной перепланировки в Московской области. Задача была выполнена! Считаю важным – оплачивала услуги компании по результату, предоплату не берут. Контакты компании нашла в сети интернет. Не жалею, что обратилась, теперь могу рекомендовать!

Анастасия А.

Максимальная клиентоориентированность и глубокие профессиональные знания. И утешат, и приободрят, где надо. Подскажут все подводные камни. Однозначно рекомендую. Сегодня спасли от необдуманного шага. Спасибо

Елена Болдырева

Большое спасибо сотрудникам этой прекрасной организации. Ребята помогли согласовать перепланировку, сделанную еще в 2011 году. Несмотря на сложности, проявили стойкость и профессионализм, огромное терпение в общении с чиновниками. Спасибо огромное! Однозначно будем рекомендовать всем знакомым. Удачи, ребята!

ольга б.

Прекрасная сплоченная профессиональная команда. Спасибо огромное за качественную и ответственную работу. Блестящий результат даже в очень сложной ситуации! Спасибо.

Андрей Н.

Профессиональная команда работает на достижение результата даже в самых сложных и запутанных, как у меня, случаях. До них отказались две крупные конторы. При этом, не требуют ни рубля предоплаты. Оплата только после выполнения работы, независимо от того, сколько это может занять времени при меняющихся правилах оформления. Стоимость адекватная. Всегда на связи. Подробно и терпеливо разъясняют все нюансы. Эту команду рекомендую!

Анна Терешинская

Хочу выразить огромную благодарность команде профессионалов своего дела! Обращалась в компанию за услугой согласования перепланировки квартиры. Общалась с сотрудником отдела продаж Дмитрием. В сравнении с другими компаниями, куда обращалась, он все грамотно, доступно объяснил. Даже мысли не возникло заключить договор с другой компанией. И я не пожалела! Все работы были выполнены в сроки, указанные в заключенном договоре. Также для проведения обследования, измерения и замеров и тд. на объект приезжала девушка - очень вежливый и квалифицированный проектировщик. В итоге вся команда быстро сработала и я получила заветное согласование перепланировки квартиры! Уважаемый руководитель компании, могу точно сказать, что Вы отличный руководитель, что собрали такую ответственную, надежную и высокопрофессиональную команду! Так держать! Буду советовать знакомым Вашу компанию и, думаю, что при наличии вопросов по согласованиям, сама еще обращусь к Вам.

LVM

Сегодня с помощью Дмитрия удалось избежать покупки квартиры, которую практически невозможно оформить в БТИ! Спасибо огромное! Кстати-абсолютно бесплатно! Уделил время на протяжении нескольких дней, разобрался и выявил несоответствия, которые впоследствии вряд ли бы решились! Рекомендую данную компанию как -профессионалов!

Лариса

Спасибо огромное команде за свой профессионализм! Ребята знают свое дело. Очень помогли мне в моем решение. Заключили договор, все сроки выполнены. Проектировщики молодцы. Рекомендую сотрудника отдела продаж Дмитрия. Ни каких проблем не возникло. Лучшие! Спасибо.

Александр Жуков

Профессиональная компания с индивидуальным подходом и широким уровнем услуг. Обращался к ним дважды. Оба раза быстро и четко помогли с узакониванием уже выполненных перепланировок. Работают не только по Москве, но и Московской области. Цены адекватные, плюс можно оплачивать в рассрочку. Рекомендую!

sergey.s.ivanov77

Сложный случай с легализацией давней глубокой перепланировки в доме, у которого утрачены все чертежи несущих конструкций (и такое бывает, как выяснилось). Заняло время, но все в итоге получилось. Хорошо иметь дело с профессионалами.

Екатерина Фролова

Команда настоящих профессионалов! Очень довольна что обратилась именно к ним. Сроки по моему объекту поджимали, все сделали быстро и без проволочек. Особо хочу отметить отношение на полном доверии, спасибо Анне! Очень им благодарна за качественную работу и приятное общение и внимание!

Марина Г.

Отличная компания, все понятно объясняют, качественно и быстро работают. Перепланировку узаконили быстро и без проблем! Осталась полностью довольна качеством и ценой!

Раиса Истомина

Хорошая, надежная и грамотная компания. Обращалась с вопросом согласования перепланировки нежилого помещения. Выбрала услугу «под ключ». Согласование получила в указанный в договоре срок. Ранее этим же вопросом занималась другая компания, никак не могли получить согласование. Хочу сказать большое спасибо менеджеру по продажам и проектировщикам данной организации.

Александр Г.

Быстро согласовали перепланировку в квартире, оперативно решили все. Спасибо! Огромные молодцы!!!! Обязательно еще раз к вам обращусь и друзьям посоветую!

Светлана Ж

Данная компания помогала согласовать перепланировку на объекте в Московской области. Качественно разработали проектную документацию, технические планы. Уложились в сроки, в которые обещали согласовать перепланировку. Оплату берут по факту оказания услуг, что является большим плюсом. Считаю, что компания ответственна за результат, выполняет взятые обязательства, делает эффективную работу и воплощают решения в жизнь! Рекомендую!!!

Дмитрий Гусев

Перед обращением сюда общался с многими компаниями по согласованию. Рекомендую, тут лучшие условия на рынке и действительно компетентные сотрудники. Перепланировку моей квартиры согласовали без проблем с первого раза!

Андрей р.

Обращался в компанию с просьбой разработать техническую документацию и согласовать ее под ключ в МЖИ. Документацию разработали в течении 10 дней и согласовали за 2 месяца. Огромное спасибо менеджеру Дмитрию. Причем оплату взяли по факту выполненных работ. Рекомендую.

Вадим С.

Обратился в данную организацию по вопросу перепланировки, все доступно объяснили, вежливое общение, документы получены в обговоренные сроки. Благодарю.

Ирина С

Молодцы!!!! Все четко сделали. Молодцы!!! Большая благодарность ребятам. Рекомендую!!!

Ден Пол

Мега Профессиональный подход, качество и скорость.

Дмитрий Т.

Отличные ребята , доступно все рассказали и узаконили мою перепланировку.

Смотрите также:

Перепланировка квартир в Москве

Мы предлагаем полный спектр услуг по перепланировке: от проектирования до согласования во всех инстанциях.

Согласование изменения фасада здания

Согласование изменений фасада здания необходимо для соблюдения архитектурных и градостроительных норм, а также для предотвращения нарушений, которые могут повлиять на безопасность, эстетику и гармоничность городской застройки.

Согласование перепланировки квартиры

ТехСтройЭксперт поможет пройти все этапы согласования перепланировки вашей квартиры, включая подготовку и подачу необходимых документов. Обеспечим правильное оформление, чтобы ваша перепланировка соответствовала строительным и юридическим требованиям.

Контакты

Отдел продаж: +7 (499) 643-45-42
Время работы:
ИНН 9717062085
ОГРН1177746639476
Расчетный счет40702810402720002677
Юридический адрес129626, Москва , ул. 1-я Мытищинская, д. 3, стр. 1
Корреспондентный счет30101810200000000593

Оставьте заявку и мы постараемся вам помочь