Разделение квартиры на студии

перепланировок за 2023 год

вероятность согласования

опыта на рынке, с 2016 года

Бесплатная консультация

Оставьте заявку и наш специалист свяжется с вами в ближайшее время

Нажимая «Получить консультацию», вы соглашаетесь на обработку персональных данных

Вариант с выделением из квартиры однокомнатных студийных помещений набирает популярность, особенно в крупных городах, где высокая стоимость недвижимости. Такой подход позволяет собственникам получать дополнительный доход от аренды, ведь под сдачу идет не одно помещение, а несколько.

Главное при разделении квартиры на студии — соблюдать законодательные и технические нормы, чтобы избежать возможных проблем. Рассказываем обо всех нюансах «дробления» и отвечаем на часто задаваемые вопросы.

Что стоит учесть

Прежде чем приступить к разделению, необходимо тщательно подготовиться и изучить все аспекты:

  1. Разделение квартиры на студии регулируется Жилищным кодексом РФ. Любая перепланировка должна быть согласована с местными органами власти и зарегистрирована в Росреестре. Возможен и отказ в тех случаях, когда планируется демонтировать несущие стены, устанавливать окна в новых местах и проводить другие операции, нарушающие целостность многоквартирного дома и технику безопасности.
  2. Есть строгие технические ограничения:
    • разделить можно квартиру на 1-м этаже, если он занят нежилыми помещениями — на 2-м;
    • площадь должна быть не менее 8 квадратных метров на жилую комнату, кухня — не менее 5;
    • для каждой студии обязательны естественное освещение и вентиляция;
    • звукоизоляционные перегородки должны соответствовать СНиП 23-03-2003 «Защита от шума»;
    • каждое выделенное жилье должно иметь отдельный вход;
    • необходимо учитывать СНиПы по водоснабжению и водоотведению, санитарные нормы для кухонь и санузлов;
    • для каждой студии предусматриваются отдельные коммуникационные системы, независимые от других помещений.

Разделение — процесс сложный и многоэтапный, поэтому требует внимательного подхода и знания всех нюансов. Правильная подготовка и соблюдение нормативов помогут вам избежать штрафов, а также обеспечить будущим арендаторам комфорт и безопасность.

Как накажут за самовольное разделение

Выделение из квартиры студий без соответствующих согласований с органами власти может повлечь серьезные юридические и финансовые последствия:

  • штраф в соответствии со ст. 7.21 КоАП РФ;
  • иск со стороны органов МСУ или управляющей компании о приведении помещения в первоначальное состояние, если перепланировка нарушает строительные нормы и угрожает безопасности жильцов и соседей;
  • возмещение убытков и морального вреда, если самовольная разбивка причинила вред соседям.

Кроме административной и гражданско-правовой ответственности, собственник может столкнуться с проблемами при продаже незаконно разделенных студий. Покупатели и банки, предоставляющие ипотеку, требуют правомерности всех изменений. Уже совершенную сделку можно признать недействительной в судебном порядке.

Как согласовать с госорганами

Согласование разделения квартиры на студии — обязательный этап. Необходимо тщательно подготовиться и обратиться в местную администрацию. Как правило, подобными вопросами занимаются отделы по жилищному строительству (в Москве это Мосжилинспекция).

Нужно предоставить:

  • заявление;
  • проектную документацию и заключение о возможности перепланировки, составленные опытными специалистами в данной области;
  • согласование с УК (ТСЖ);
  • правоустанавливающие документы на объект недвижимости;
  • технический паспорт помещения;
  • разрешения на перенос коммуникационных систем, например газовой трубы, от соответствующей организации (при необходимости);
  • нотариальную доверенность, если в интересах собственника документы подает другое лицо, например компания, которая занималась разработкой проекта.

Более подробный перечень документов необходимо уточнить в ответственном ведомстве, там же предоставят бланк заявления. После этого орган МСУ назначит проверку проекта на соответствие законодательным и техническим нормам. При положительном заключении вы получите разрешение на перепланировку. Этот документ является основанием для начала строительных работ.

Продажа студии

При отчуждении квартиры, разделенной на однокомнатные студии, нужно учесть множество факторов. Это обеспечит юридическую чистоту сделки, повысит привлекательность недвижимости для покупателей и упростит передачу прав собственности.

Что должен сделать собственник разделенной квартиры:

  1. Зарегистрировать все изменения в Росреестре. Подать заявление можно непосредственно в указанный орган или через МФЦ, предоставив пакет документов с проектом и разрешением муниципального органа.
  2. Подготовить документы для будущей сделки. Потребуются сведения, подтверждающие право собственности (отражаются в выписке из ЕГРН). Также будущему собственнику необходим новый техпаспорт, где отражена перепланировка.
  3. Снять с регистрационного учета всех прописанных в жилом помещении.
  4. Погасить все долги по коммунальным платежам и капитальному ремонту.

Для определения цены нового жилого объекта можно пригласить независимого оценщика, тем более если сделка осуществляется с привлечением ипотечных средств, материнского капитала, жилищных сертификатов.

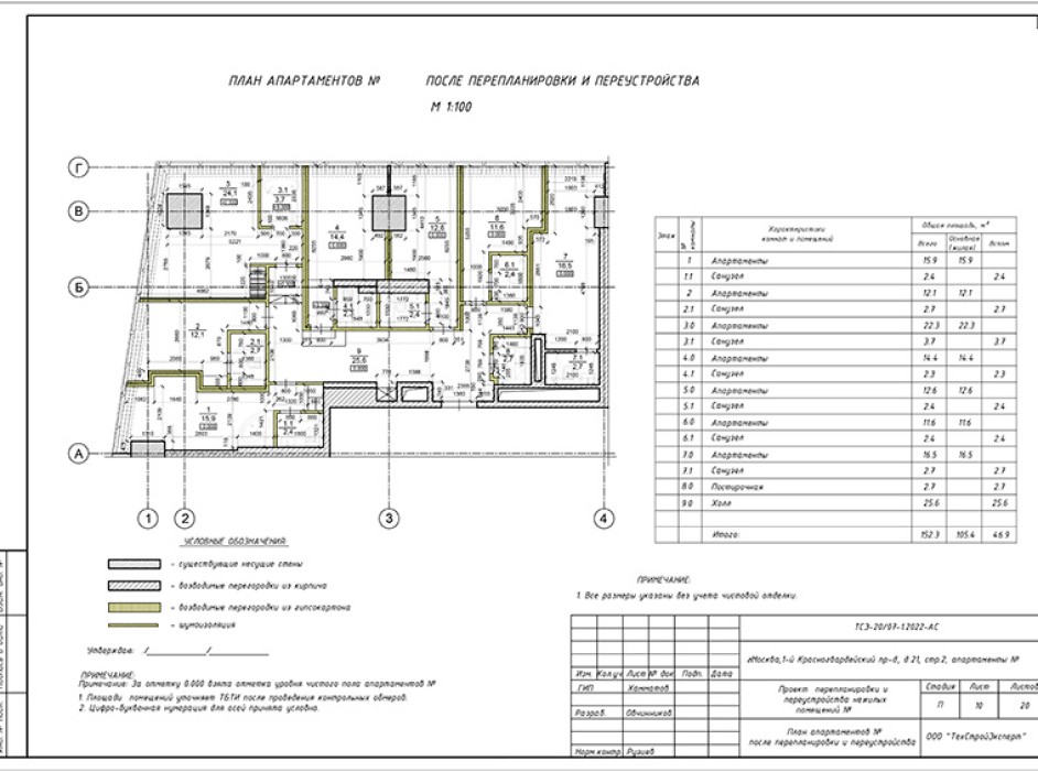
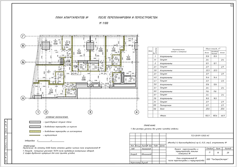
Раздел помещения на апартаменты в Башне ОКО

город Москва, 1-й Красногвардейский пр-д, дом 21, строение 2
64 дней
380 000 руб

Из коммуналки в аппарт-отель

Оружейный переулок, дом 13, строение 2
75 дней
580 000 руб

Часто задаваемые вопросы

Можно ли разделить квартиру на студии в старом доме?
Какие дополнительные расходы могут возникнуть при разделении квартиры на студии?
Какие преимущества у раздела на студии для сдачи в аренду?

Этапы согласования перепланировки

Консультируем

Оставьте заявку и получите бесплатную консультацию. Изучим эскизы и дизайн проект. Оценим можно ли согласовывать вашу перепланировку и рассчитаем стоимость.

Заключаем договор

Лично встречаемся у нас в офисе или на объекте заказчика для согласования всех деталей вашей перепланировки и подписания договора.

Выезжаем на обследование

Наш проектировщик выезжает на объект для проведения замеров и соответствующего обследования вашего помещения.

Изготавливаем проектную документацию

Наши инженеры изготовят техническую документацию необходимую для согласования перепланировки.

Согласовываем перепланировку

Юридический отдел проведет анализ всей документации и подготовит необходимые заявления для согласования в надзорных органах.

Вносим изменения в ЕГРН и БТИ

Кадастровый инженер выполнит технический план вашего помещения и мы внесем изменения в ЕГРН и БТИ

Бесплатный аудит вашей перепланировки

Заполните форму и мы проведем анализ вашей ситуации, дав экспертное заключение о возможности перепланировки помещения.

Тип помещения
Площадь помещения
На каком этапе
Что хотите сделать или уже сделали
Документы (если есть)
  1. БТИ, экспликация (поэтажный план)
  2. Эскиз планируемых работ (можно от руки)
Адрес *
Бесплатная консультация

Анализ вашей перепланировки от ведущих специалистов в области градостроительного права

Специалисты нашей компании проведут профессиональную консультацию в течении 30 минут и ответят на все вопросы

Часто задаваемые вопросы

Есть ли последствия у самовольной перепланировки?

Да, есть. Когда изменения проводятся бесконтрольно, возникает целый ряд проблем. Продажа квартиры в таких условиях невозможна. Когда оформляется ипотека, самовольная перепланировка нарушает ее условия. Также владелец может получить штраф от Мосжилинспекции, если станет известно о несогласованных изменениях.

Как подтвердить законность перепланировки?

Владелец представляет документы, удостоверяющие личность его и совладельцев (если они есть, также понадобится их согласие) или оформленную у нотариуса доверенность на имя представителя. Также потребуется выписка из реестра недвижимости, технический паспорт и свидетельство, подтверждающее право собственности на квартиру/дом – это может быть договор купли-продажи, свидетельство о праве на наследство или дарственная. Архитектурное бюро самостоятельно занимается проектом перепланировки.

Базовый пакет документов для согласования перепланировки
  1. Выписка ЕГРН
  2. План БТИ
  3. ТЗК
  4. Проект
  5. Согласие всех собственников
  6. Доверенность.

При заказе согласования перепланировки под ключ от компании «ТехСтройЭксперт», достаточно только доверенности.

С чего начать перепланировку?

Перепланировку необходимо начать с бесплатной консультации! Далее правильно выполнить дизайн проект соблюдая все нормы и правила действующего законодательства. И выбрать компетентное Архитектурное бюро, для изготовления проектной документации.

Как долго длится согласование изменений планировки помещения в Москве?

При отсутствии знания процедур, оформление длится месяцами – иногда до полугода. Узаконивание происходит быстрее, если заказать переустройство под ключ в специализированном бюро. Непосредственно разработка проекта занимает 10-14 дней, при подаче документов в Мосжилинспекцию на рассмотрение вопроса уходит не более 3 недель.

Далее выполняете ремонт согласно проекту, на это вам отводится 18 месяцев, без возможности продления этого срока. Мы ведем авторский надзор на различных этапах, чтобы исключить возможность отклонения от проекта. Подготавливаем всю необходимую документацию и получаем АКТ о выполненной перепланировке в МЖИ.

Реально ли самостоятельно узаконить перепланировку?

Да, теоретически, такая возможность есть. Владелец недвижимости должен собрать все предусмотренные законом документы. Дальнейшие действия зависят от цели, но проще всего подать заявку через сайт Госуслуги. Если ремонт только планируется, нужно выбрать вкладку «Переустройство и перепланировка в жилом доме», а после – «согласование переустройства квартиры». Когда же изменения планировки узаконены, на сайте Госуслуг следует выбрать «Оформление приемочной комиссией акта о завершенном переустройстве».

Как узнать стоимость согласования перепланировки жилья?

Точную сумму можно узнать только у специалистов во время консультации. Это обусловлено тем, что цена всегда разная, т. к. зависит от размеров квартиры, степени сложности работ, их вида. Выгоднее будет цена при заказе услуги«под ключ, что включает разработку проекта и оформление документации.

Остались вопросы? Задайте их экcперту

Напишите нам в Telegram/What’s app. Наш специалист ответит в течение нескольких минут.

Отзывы

Лариса Геннадьевна Ф.

Хочу выразить благодарность архитектурному бюро «Прямое Право» за отличную работу. Все четко, оперативно, эффективно. Обратилась с вопросом по узакониванию уже выполненной перепланировки в Московской области. Задача была выполнена! Считаю важным – оплачивала услуги компании по результату, предоплату не берут. Контакты компании нашла в сети интернет. Не жалею, что обратилась, теперь могу рекомендовать!

Анастасия А.

Максимальная клиентоориентированность и глубокие профессиональные знания. И утешат, и приободрят, где надо. Подскажут все подводные камни. Однозначно рекомендую. Сегодня спасли от необдуманного шага. Спасибо

Елена Болдырева

Большое спасибо сотрудникам этой прекрасной организации. Ребята помогли согласовать перепланировку, сделанную еще в 2011 году. Несмотря на сложности, проявили стойкость и профессионализм, огромное терпение в общении с чиновниками. Спасибо огромное! Однозначно будем рекомендовать всем знакомым. Удачи, ребята!

ольга б.

Прекрасная сплоченная профессиональная команда. Спасибо огромное за качественную и ответственную работу. Блестящий результат даже в очень сложной ситуации! Спасибо.

Андрей Н.

Профессиональная команда работает на достижение результата даже в самых сложных и запутанных, как у меня, случаях. До них отказались две крупные конторы. При этом, не требуют ни рубля предоплаты. Оплата только после выполнения работы, независимо от того, сколько это может занять времени при меняющихся правилах оформления. Стоимость адекватная. Всегда на связи. Подробно и терпеливо разъясняют все нюансы. Эту команду рекомендую!

Анна Терешинская

Хочу выразить огромную благодарность команде профессионалов своего дела! Обращалась в компанию за услугой согласования перепланировки квартиры. Общалась с сотрудником отдела продаж Дмитрием. В сравнении с другими компаниями, куда обращалась, он все грамотно, доступно объяснил. Даже мысли не возникло заключить договор с другой компанией. И я не пожалела! Все работы были выполнены в сроки, указанные в заключенном договоре. Также для проведения обследования, измерения и замеров и тд. на объект приезжала девушка - очень вежливый и квалифицированный проектировщик. В итоге вся команда быстро сработала и я получила заветное согласование перепланировки квартиры! Уважаемый руководитель компании, могу точно сказать, что Вы отличный руководитель, что собрали такую ответственную, надежную и высокопрофессиональную команду! Так держать! Буду советовать знакомым Вашу компанию и, думаю, что при наличии вопросов по согласованиям, сама еще обращусь к Вам.

LVM

Сегодня с помощью Дмитрия удалось избежать покупки квартиры, которую практически невозможно оформить в БТИ! Спасибо огромное! Кстати-абсолютно бесплатно! Уделил время на протяжении нескольких дней, разобрался и выявил несоответствия, которые впоследствии вряд ли бы решились! Рекомендую данную компанию как -профессионалов!

Лариса

Спасибо огромное команде за свой профессионализм! Ребята знают свое дело. Очень помогли мне в моем решение. Заключили договор, все сроки выполнены. Проектировщики молодцы. Рекомендую сотрудника отдела продаж Дмитрия. Ни каких проблем не возникло. Лучшие! Спасибо.

Александр Жуков

Профессиональная компания с индивидуальным подходом и широким уровнем услуг. Обращался к ним дважды. Оба раза быстро и четко помогли с узакониванием уже выполненных перепланировок. Работают не только по Москве, но и Московской области. Цены адекватные, плюс можно оплачивать в рассрочку. Рекомендую!

sergey.s.ivanov77

Сложный случай с легализацией давней глубокой перепланировки в доме, у которого утрачены все чертежи несущих конструкций (и такое бывает, как выяснилось). Заняло время, но все в итоге получилось. Хорошо иметь дело с профессионалами.

Екатерина Фролова

Команда настоящих профессионалов! Очень довольна что обратилась именно к ним. Сроки по моему объекту поджимали, все сделали быстро и без проволочек. Особо хочу отметить отношение на полном доверии, спасибо Анне! Очень им благодарна за качественную работу и приятное общение и внимание!

Марина Г.

Отличная компания, все понятно объясняют, качественно и быстро работают. Перепланировку узаконили быстро и без проблем! Осталась полностью довольна качеством и ценой!

Раиса Истомина

Хорошая, надежная и грамотная компания. Обращалась с вопросом согласования перепланировки нежилого помещения. Выбрала услугу «под ключ». Согласование получила в указанный в договоре срок. Ранее этим же вопросом занималась другая компания, никак не могли получить согласование. Хочу сказать большое спасибо менеджеру по продажам и проектировщикам данной организации.

Александр Г.

Быстро согласовали перепланировку в квартире, оперативно решили все. Спасибо! Огромные молодцы!!!! Обязательно еще раз к вам обращусь и друзьям посоветую!

Светлана Ж

Данная компания помогала согласовать перепланировку на объекте в Московской области. Качественно разработали проектную документацию, технические планы. Уложились в сроки, в которые обещали согласовать перепланировку. Оплату берут по факту оказания услуг, что является большим плюсом. Считаю, что компания ответственна за результат, выполняет взятые обязательства, делает эффективную работу и воплощают решения в жизнь! Рекомендую!!!

Дмитрий Гусев

Перед обращением сюда общался с многими компаниями по согласованию. Рекомендую, тут лучшие условия на рынке и действительно компетентные сотрудники. Перепланировку моей квартиры согласовали без проблем с первого раза!

Андрей р.

Обращался в компанию с просьбой разработать техническую документацию и согласовать ее под ключ в МЖИ. Документацию разработали в течении 10 дней и согласовали за 2 месяца. Огромное спасибо менеджеру Дмитрию. Причем оплату взяли по факту выполненных работ. Рекомендую.

Вадим С.

Обратился в данную организацию по вопросу перепланировки, все доступно объяснили, вежливое общение, документы получены в обговоренные сроки. Благодарю.

Ирина С

Молодцы!!!! Все четко сделали. Молодцы!!! Большая благодарность ребятам. Рекомендую!!!

Ден Пол

Мега Профессиональный подход, качество и скорость.

Дмитрий Т.

Отличные ребята , доступно все рассказали и узаконили мою перепланировку.

Блог

Читайте наши информационные статьи про особенности проведения и согласования перепланировок

Больше статей в нашем блоге

Контакты

Отдел продаж: +7 (499) 643-45-42
Время работы:
ИНН 9717062085
ОГРН1177746639476
Расчетный счет40702810402720002677
Юридический адрес129626, Москва , ул. 1-я Мытищинская, д. 3, стр. 1
Корреспондентный счет30101810200000000593

Оставьте заявку и мы постараемся вам помочь